Ładowanie...
€700,000
Nowa inwestycja obejmująca 12 ekskluzywnych willi w Finestrat, oferująca idealną równowagę pomiędzy śródziemnomorskim stylem, nowoczesnym designem i codziennym komfortem. Domy położone są w spokojnym otoczeniu w otoczeniu natury, a jednocześnie blisko wszystkich niezbędnych usług i obiektów rekreacyjnych.
Każda willa została zaprojektowana z naciskiem na światło, funkcjonalność i jakość. Współczesne linie i naturalne tony definiują przestrzenie, zapewniając harmonię pomiędzy wnętrzem a zewnętrznymi strefami mieszkalnymi. Duże okna wypełniają każde pomieszczenie światłem słonecznym, wzmacniając otwartą i elegancką atmosferę.
Każda willa obejmuje prywatne strefy zewnętrzne, które odzwierciedlają śródziemnomorski styl życia, idealne do relaksu lub przyjmowania gości:
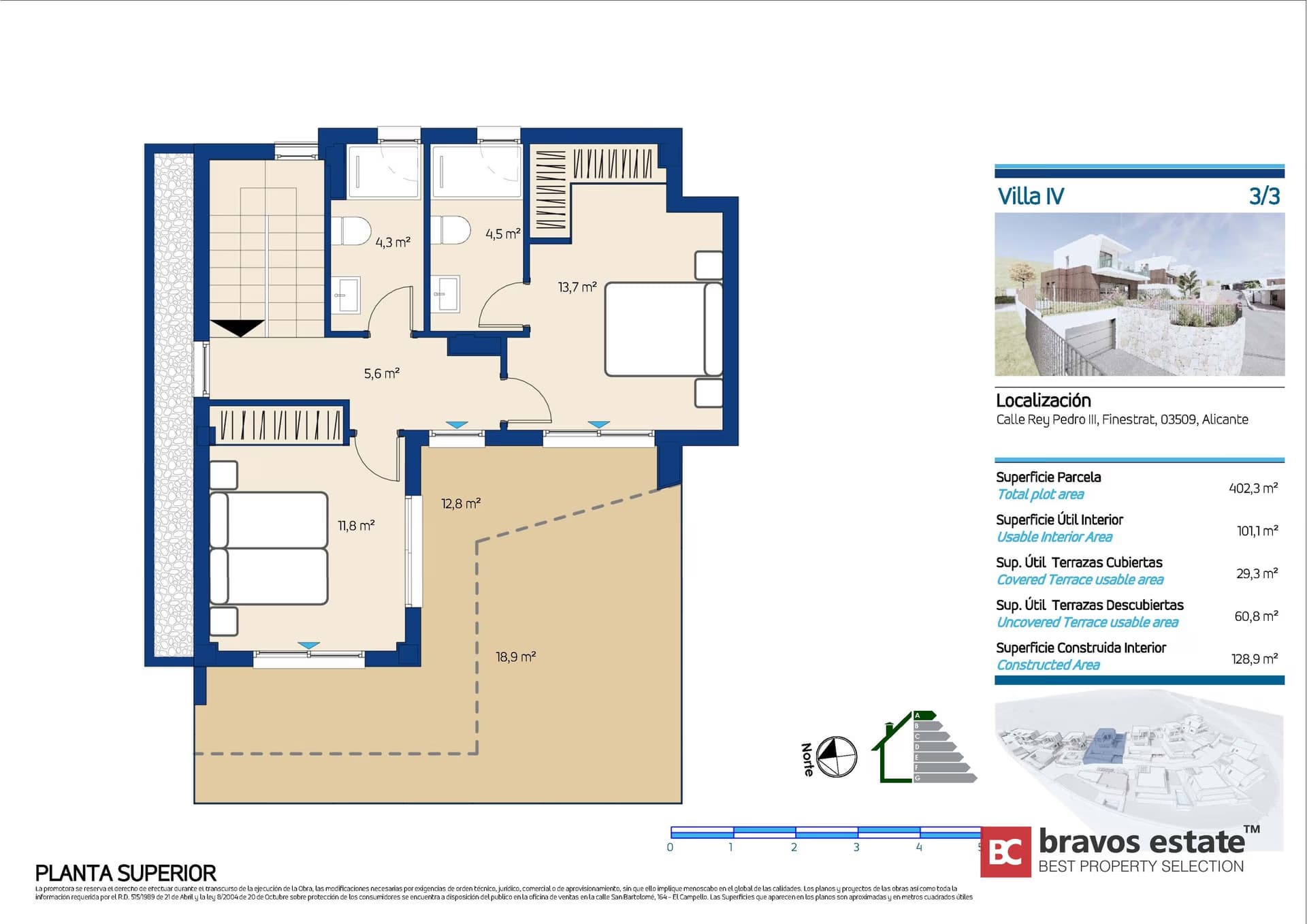
Położone w prestiżowej dzielnicy mieszkalnej Finestrat, te wille oferują spokój, morską bryzę i doskonałe połączenia komunikacyjne. Zaledwie 5 minut od Benidorm, 40 minut do lotniska w Alicante i w pobliżu pól golfowych, międzynarodowych szkół oraz centrów handlowych.
Idealny dom dla tych, którzy szukają spokoju, natury i komfortu — wszystko w łatwym dostępie do wybrzeża Morza Śródziemnego.







Projekt
Projekt
Podana cena nie obejmuje podatków ani kosztów związanych z zakupem (ITP/IVA, AJD, notariusz, rejestr, opłaty administracyjne). Skontaktuj się z naszymi doradcami w celu szczegółowej kalkulacji.