Ładowanie...

€750,000
Położona w poszukiwanej dzielnicy mieszkalnej Balcón de Finestrat – Terra Marina, ta umeblowana willa oferuje komfortowe i przestronne środowisko życia z doskonałym dostępem zarówno do nadmorskich, jak i miejskich udogodnień. Dom znajduje się na działce o powierzchni 400 m²—jednej z największych w osiedlu—korzystając z dodatkowej przestrzeni zewnętrznej i orientacji południowej z częściowym widokiem na okolicę.
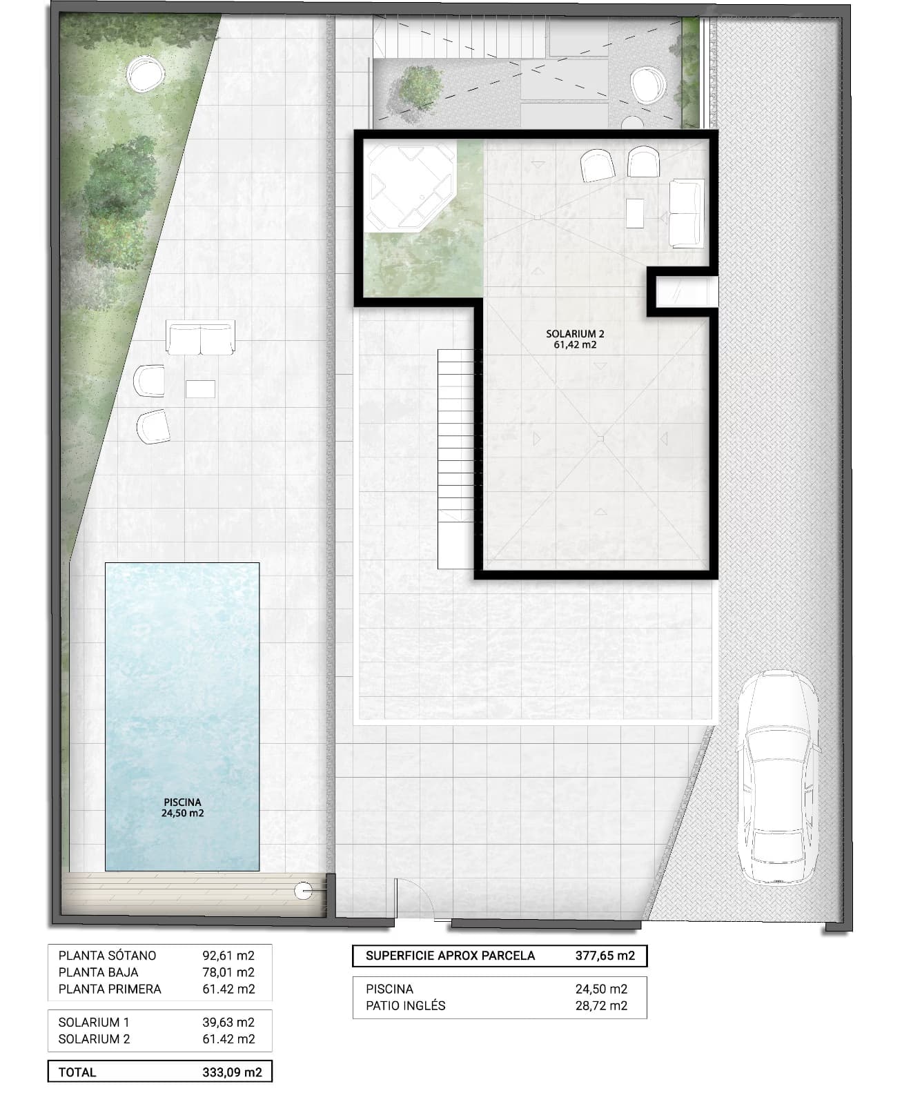
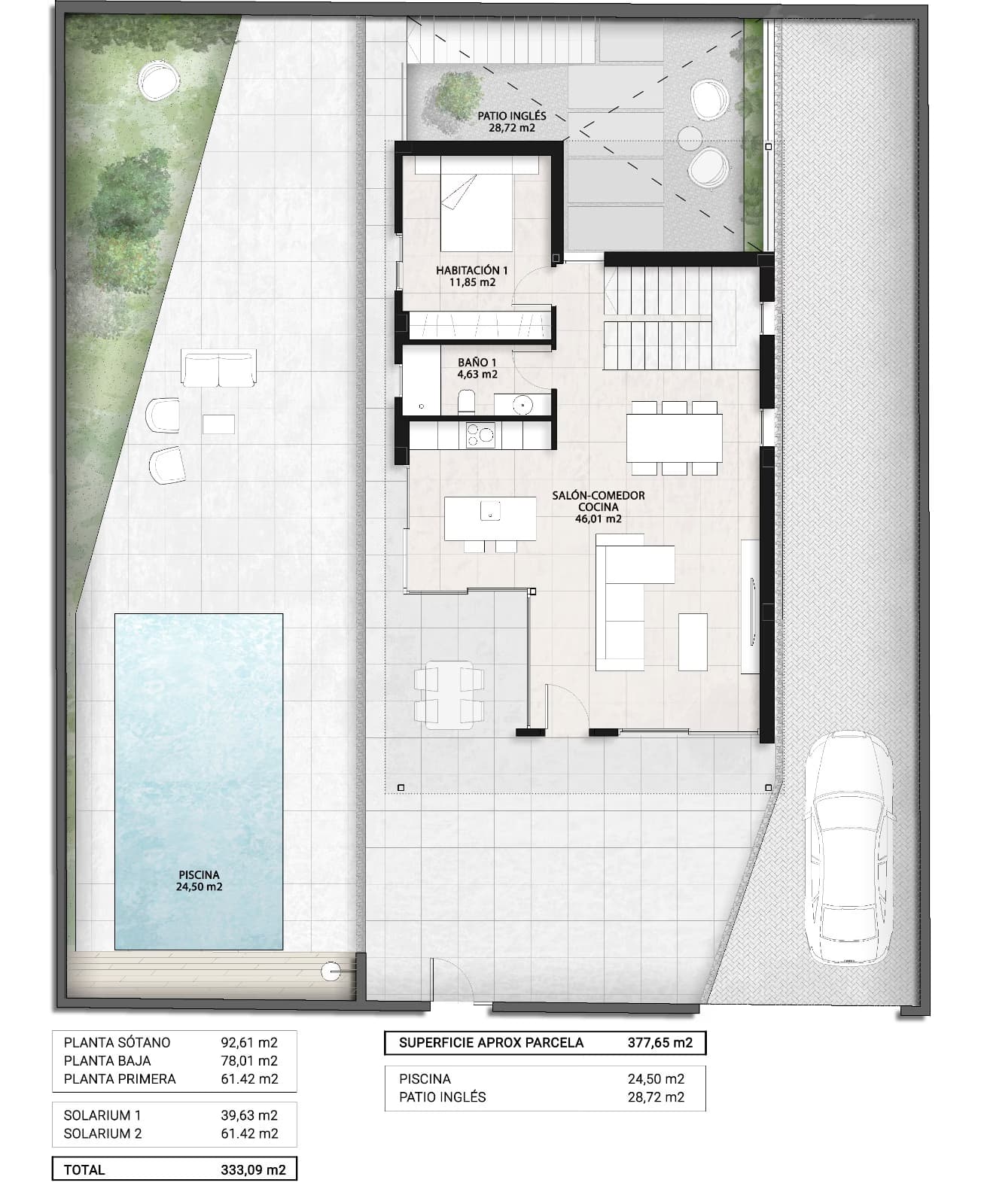
Przy 260 m² całkowitej powierzchni zabudowy rozmieszczonej na trzech poziomach, willa prezentuje dobrze zaplanowany układ idealny dla życia rodzinnego lub przyjmowania gości. Główne piętro obejmuje jasny salon-jadalnię, w pełni wyposażoną kuchnię otwartą, jedną sypialnię z szafami wnękowymi oraz kompletną łazienkę z prysznicem. Na piętrze dwie dodatkowe sypialnie wyposażone są w łazienki en-suite oraz dostęp do dużego tarasu od strony południowej.
W pełni wykończone piwnica zwiększa funkcjonalność dzięki przestronnemu salonowi, możliwości dodania dwóch kolejnych sypialni, kolejnej łazience, pomieszczeniu technicznemu i pralni. Dostępny jest również dostęp do drugiego poziomu ogrodu ze sztuczną trawą, dodającego jeszcze więcej przestrzeni rekreacyjnej.
Na zewnątrz willa oferuje łatwy w utrzymaniu ogród wyłożony płytkami, prywatny basen oraz miejsce parkingowe dla maksymalnie trzech pojazdów. Dodatkowe udogodnienia obejmują centralną klimatyzację (ciepło/zimno), elektryczne rolety w całym budynku oraz panele słoneczne na dachu. Nieruchomość sprzedawana jest z meblami.
Kluczowe cechy:
Willa jest częścią nowoczesnego osiedla mieszkalnego w spokojnej, lecz dobrze skomunikowanej okolicy.
O okolicy: Finestrat–Benidorm to bardzo pożądany region na hiszpańskim Costa Blanca, znany z połączenia górskich i morskich krajobrazów. Obszar znajduje się blisko piaszczystych plaż, malowniczych szlaków turystycznych, pól golfowych, międzynarodowych szkół, centrów handlowych oraz tętniącego życiem miasta Benidorm. Oferuje również łatwy dostęp do miasta Alicante, lotniska oraz autostrady AP-7, co czyni go idealnym zarówno na wakacje, jak i do zamieszkania przez cały rok.




W trakcie realizacji
W trakcie realizacji
Podana cena nie obejmuje podatków ani kosztów związanych z zakupem (ITP/IVA, AJD, notariusz, rejestr, opłaty administracyjne). Skontaktuj się z naszymi doradcami w celu szczegółowej kalkulacji.