Laden...
€231.500
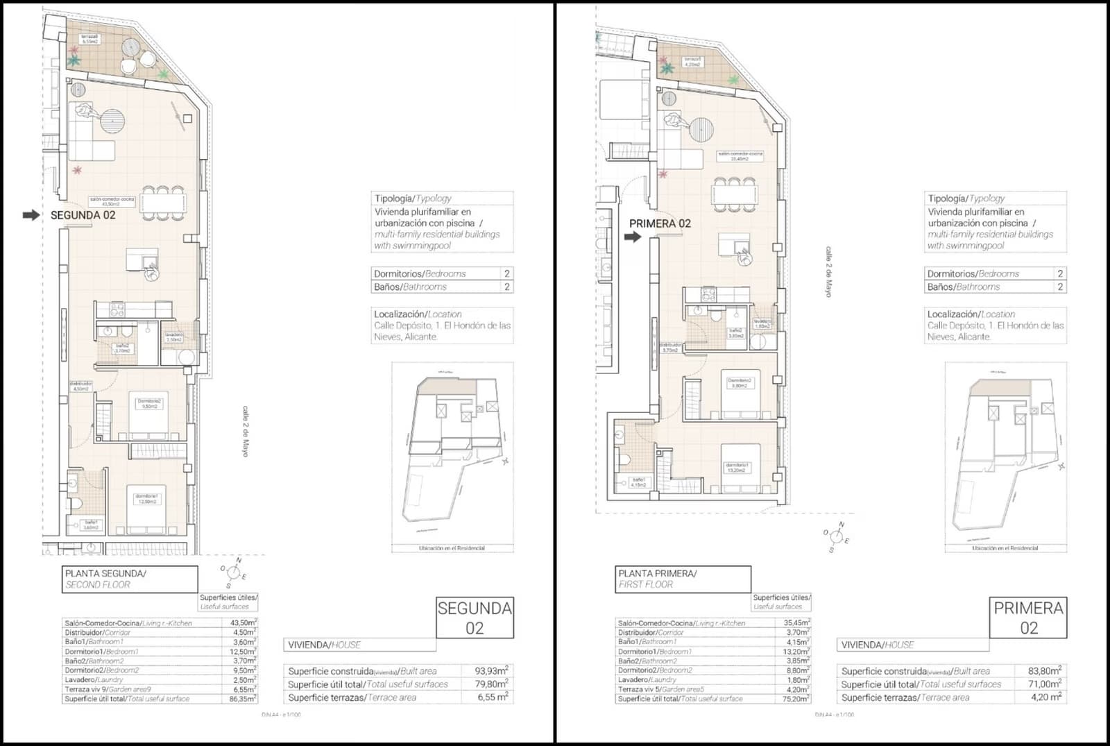
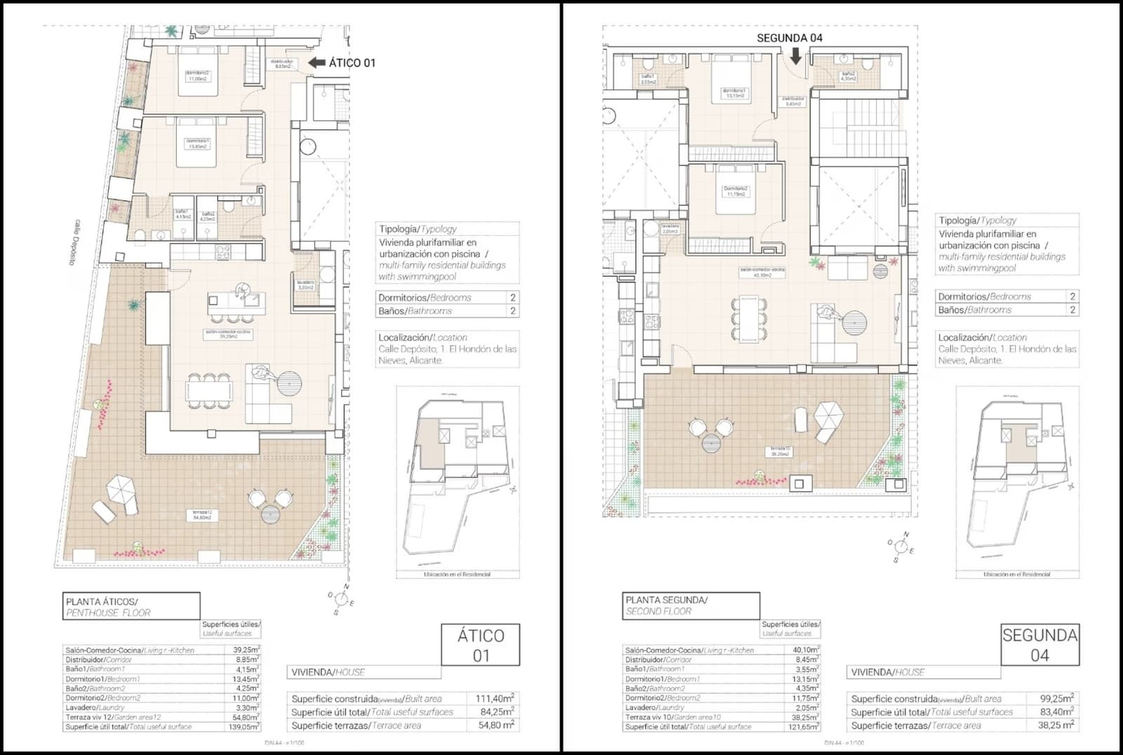
Dit nieuwbouw wooncomplex biedt moderne appartementen met 2 slaapkamers en 2 badkamers, met een oppervlakte variërend van 84 m² tot 100 m², gelegen in de pittoreske vallei van Hondón de las Nieves, in het binnenland van de provincie Alicante. Genesteld tussen olijf- en amandelboomgaarden, geniet het complex van een rustige natuurlijke omgeving en een vrij uitzicht op de bekende wijngaarden van de regio.
Het stadje Hondón de las Nieves ligt in het zuidwesten van Alicante, in de regio Vinalopó Medio, en omvat de nabijgelegen dorpen La Canalosa en El Rebalso. Deze vallei, beschermd door de Sierra de Crevillente, staat bekend om de productie van hoogwaardige tafeldruiven met beschermde oorsprongsbenaming ("Uva de mesa embolsada Vinalopó"). Het gebied beschikt ook over schilderachtige natuurgebieden en historische gebouwen die een bezoek waard zijn.
De woningen zijn uitgerust met moderne en energiezuinige voorzieningen, waaronder:
Het complex beschikt over een scala aan gemeenschappelijke voorzieningen die zijn ontworpen voor comfort en levenskwaliteit:
Afstanden tot belangrijke punten:
Deze appartementen zijn ideaal voor wie wil genieten van modern wonen in een rustige, landelijke omgeving, met een sterke band met de natuur en traditionele Spaanse charme. Een perfecte balans tussen plattelandsrust en gemakkelijke toegang tot de kust en belangrijke voorzieningen.


Project
Project
De aangegeven prijs is exclusief belastingen en kosten verbonden aan de aankoop (ITP/btw, AJD, notaris, kadaster, beheerskosten). Neem contact op met onze adviseurs voor een gedetailleerde berekening.