Cargando...
VENDIDO
Vive el lujo junto al mar en esta exclusiva promoción residencial, ubicada en una de las zonas más privilegiadas de la Costa Blanca. A solo 50 metros de la orilla, este complejo ofrece 22 residencias diseñadas para disfrutar de la tranquilidad, el confort y unas vistas panorámicas inigualables al Mediterráneo.
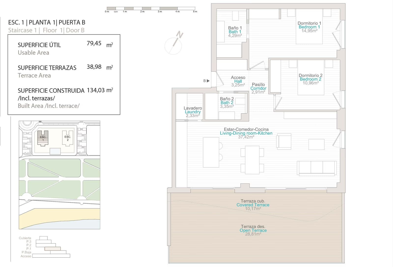
Con una arquitectura innovadora que se fusiona con el entorno natural, el proyecto presenta viviendas de 1, 2 y 3 dormitorios. Elige entre plantas bajas con jardín privado, elegantes apartamentos con amplias terrazas o exclusivos áticos con solárium, todos ellos diseñados para maximizar la luz natural y brindar una experiencia única frente al mar.
Cada residencia ha sido concebida para ofrecer el máximo confort y una estética sofisticada. Los detalles de alta gama y la tecnología más avanzada garantizan una experiencia de lujo sin igual. Entre sus características destacan:
Además, los residentes podrán disfrutar de una exclusiva gama de servicios diseñados para el bienestar y la relajación:
Ubicado en una bahía natural de aguas cristalinas y arena dorada, este enclave combina lujo y serenidad. Su proximidad a la histórica ciudad de Allón, habitada por griegos y romanos en la antigüedad, aporta un valor cultural y patrimonial excepcional.
Despierta con el sonido del mar, disfruta de más de 300 días de sol al año y aléjate del ruido y el estrés de la vida urbana. Si buscas un refugio de paz o un hogar sofisticado en el Mediterráneo, este exclusivo complejo te ofrece la oportunidad perfecta para disfrutar de un estilo de vida privilegiado.
Descubre el verdadero significado del lujo frente al mar y haz realidad el sueño de vivir en el Mediterráneo.

Proyecto
Proyecto
El precio indicado no incluye impuestos ni gastos asociados a la compraventa (ITP/IVA, AJD, notaría, registro, gestoría). Consulte con nuestros asesores para obtener un cálculo detallado.