Loading...
€495,000
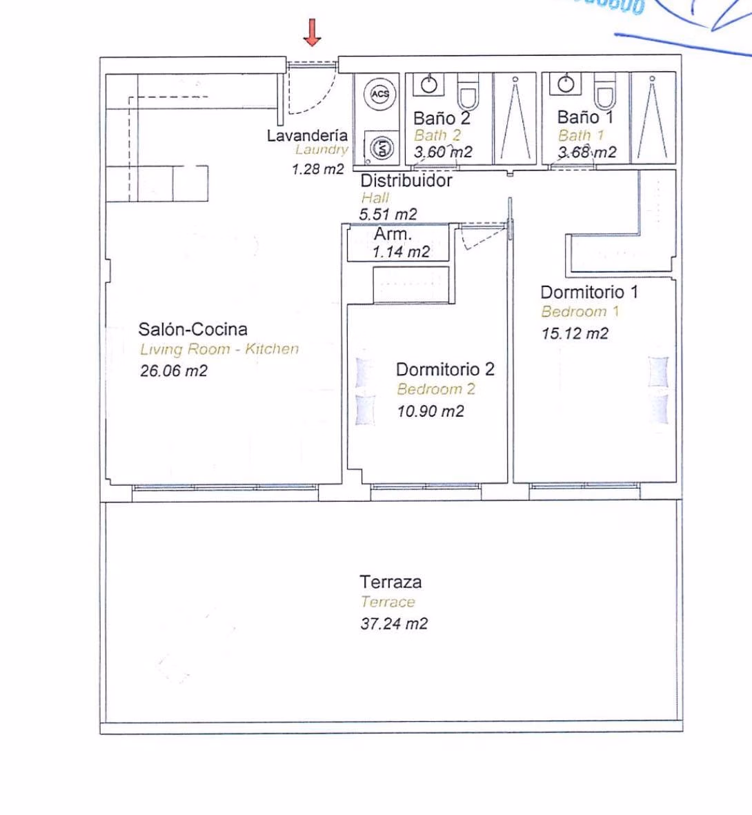
Discover Camporrosso Serpentine, the latest phase of the acclaimed Camporrosso Village in Finestrat — a unique Mediterranean residential concept designed around open spaces, lush gardens, and unobstructed sea views. This south-west facing 2-bedroom apartment offers 107 m² built area and 77 m² of usable space, with every room oriented towards the Mediterranean, capturing the very best of the Costa Blanca light.
The apartment is delivered fully furnished with high-quality fittings, including Bosch appliances, retractable awnings, and premium furniture throughout. The open-plan living area leads onto a generous 30 m² terrace with panoramic sea views — perfect for alfresco dining and sunset evenings. The main bedroom and second bedroom are both well-proportioned, each with built-in wardrobes, and served by two full bathrooms. A parking space and storage room are included in the price. The building features lift access and an adapted interior for reduced mobility.
The community amenities are truly resort-grade: an infinity pool, a heated indoor pool, paddle tennis courts, a fully equipped gym, a spa with jacuzzi and Finnish sauna, coworking and social spaces, and extensive walking and cycling paths. The landscape design is exceptional — a serpentine watercourse winds through terraced gardens with climbing plants, Mediterranean shrubs, and bougainvillea, alongside a small Mediterranean forest, blending architecture and nature in perfect harmony.
Finestrat sits in the heart of the Marina Baja, between the mountains and the sea. The beaches of Cala Finestrat and Benidorm are just 2 km away, with a full range of shops, restaurants, and entertainment easily accessible. Terra Mitica theme park is minutes away, and Alicante Airport is a 40-minute drive. The tram network connects the area to the coast, making car-free living a real option.
An ideal choice for buyers looking for a turnkey holiday home with strong short-term rental potential, or a permanent residence in one of the Costa Blanca's most desirable communities. Camporrosso Village has established a reputation for quality and lifestyle, attracting a growing international community. The fully furnished delivery and resort-level amenities make this property ready to enjoy — or rent — from day one.

The indicated price does not include taxes or costs associated with the purchase (ITP/VAT, AJD, notary, registry, management fees). Contact our advisors for a detailed calculation.