Loading...
€503,000
This newly built semi-detached villa is located in the exclusive residential area of Sierra Cortina, Finestrat — a peaceful, secure setting close to Benidorm’s beaches, shopping areas, international schools, and golf courses.
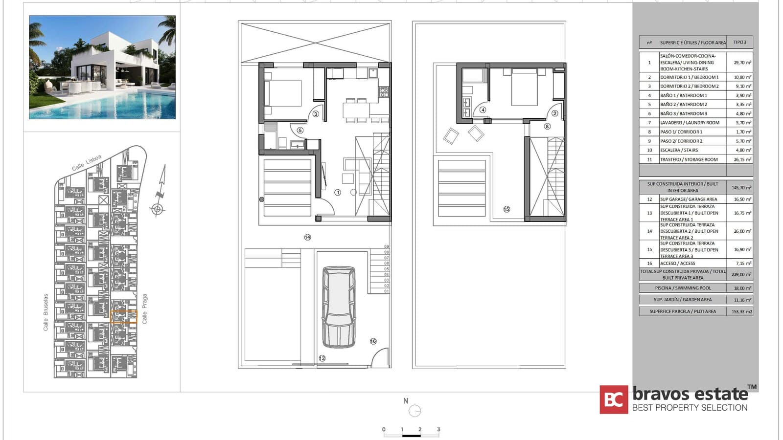
Set over three floors, the property offers 229 m² of built space, featuring a bright and functional layout with:
The villa includes a private garden and swimming pool, perfect for enjoying the Costa Blanca climate year-round. Its south, east, and west orientation provides excellent sunlight throughout the day.
Additional features:
Sierra Cortina is one of the most sought-after developments on the Costa Blanca, offering quick access to the AP-7 motorway, the Alicante airport, the beaches of Benidorm, and local services — all while maintaining a quiet and natural setting.
This modern villa is a perfect option for year-round living, a holiday home, or an investment in one of the most promising coastal regions in Spain.



Project
Project
The indicated price does not include taxes or costs associated with the purchase (ITP/VAT, AJD, notary, registry, management fees). Contact our advisors for a detailed calculation.