Loading...
These apartments are located within La Finca Resort, a consolidated residential and leisure environment in Costa Blanca South, close to the town of Algorfa. The development consists of three low-rise buildings arranged over two floors, creating a balanced and low-density setting. The properties are available with two or three bedrooms and are designed to prioritise natural light and functional living spaces.
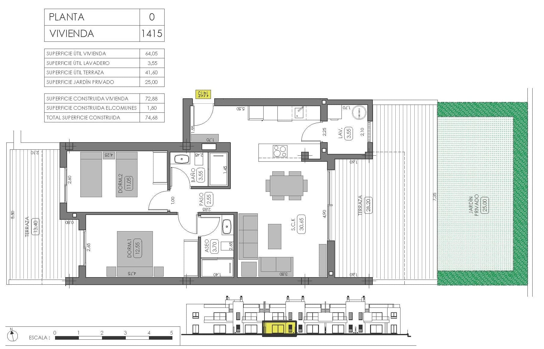
The interior is organised around an open-plan living and dining area with direct access to the terrace. The kitchen follows a modern layout, using quality materials and incorporating a breakfast bar that visually connects the kitchen with the main living space. This configuration creates a continuous, well-proportioned area suited to everyday living.
Ground floor apartments include a private garden, while top floor homes feature a spacious private solarium. In all cases, outdoor spaces are accessed directly from the living room, extending the interior living area. Residents also benefit from landscaped communal gardens with Mediterranean vegetation, sunbathing areas, and a large communal swimming pool.
The buildings are designed with a simple and functional architectural approach, limited to two storeys. The emphasis is placed on practical layouts, outdoor spaces, and shared areas that integrate naturally within the resort environment.
Bedrooms are fitted with built-in wardrobes to maximise storage. Bathrooms are fully equipped with washbasin, mirror, complete shower screens, and underfloor heating for added comfort. Air conditioning is installed throughout the apartment. Parking space and storage room availability is optional, depending on the unit.
Energy certificate: in progress.
La Finca Resort is situated approximately 4 minutes from Algorfa and offers a wide range of on-site services, including a hotel, golf course, restaurants, sports facilities, supermarket, commercial area, and pharmacy. Playa del Moncayo is located around 13 km away. Alicante Airport is approximately 56 km from the resort, with the AP-7 motorway accessible within 3 km.
These apartments are suitable for buyers seeking a low-maintenance home within a resort setting that offers established services and good transport connections. The combination of communal facilities, private outdoor areas, and proximity to golf and beaches supports both residential use and investment purposes.
The purchase price does not include taxes or additional buying costs. The property is located in the province of Alicante. Depending on the nature of the transaction, VAT (IVA) or Property Transfer Tax (ITP) will apply.

€283,000